
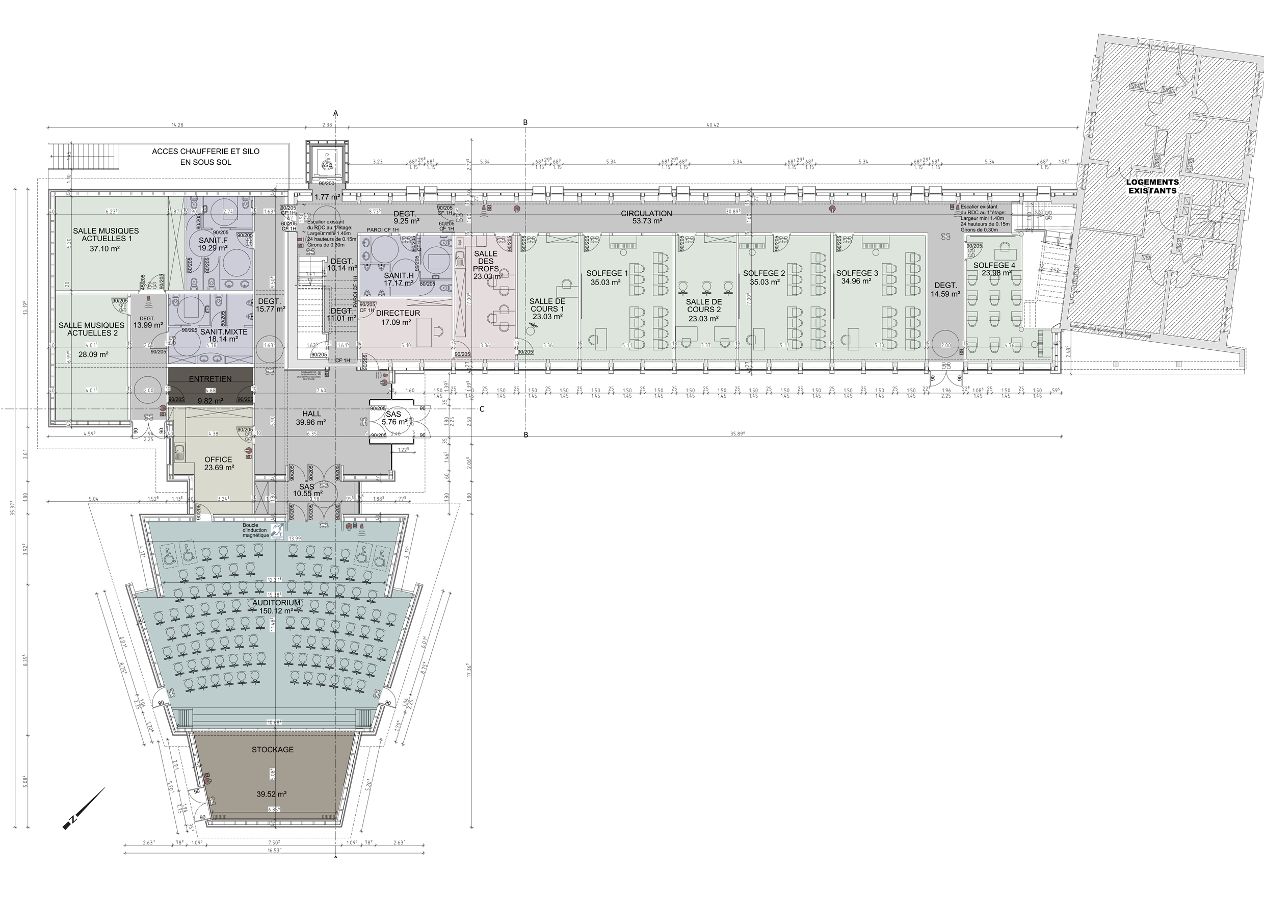
L'école Victor Hugo construite en 1954 a fait l'objet d'une réhabilitation-extension bioclimatique afin d'y accueillir la Maison de la musique.
Réhabilitation de 736 m² dont 10 Salles de cours : de 15 à 33 m²; 4 Salles de solfège : de 25 à 34 m²; Salle des professeurs : 21 m²; Bureau de la direction : 16 m². Extension de 468 m² dont Auditorium d'une capacité de 180 personnes : 152 m² + scène : 37 m²; 2 Salles de musiques actuelles : 35 m² et 28 m²; Hall: 38 m²; Office : 23 m².
Matériaux : ossature bois pour l'extension ; revêtement intérieur en Sapin dans l'auditorium ; sol linoléum ; isolation par l'extérieur (2 x 145mm de laine de verre entre deux ossatures de bois croisées de 45mm x 145mm) ; bardage bois en Mélèze et plaques Eternit bicolore sur la partie réhabilitée ; toiture en acier inoxydable sur l'extention ; adjonction d'une cage d'ascenseur en bois.
Performance thermique de l'Extension : 85,09 unité kWh d’énergie primaire/m² par an ; Performance thermique de la Réhabilitation : -3,82 unité kWh d’énergie primaire/m² par an.
Etanchéité à l’air : 0,8 unité m3/h/m² (blowerdoor test).
Mode de chauffage : pompe à chaleur sur géothermie verticale (8 puits de 100 m), puissance 45 kw / Mode de chauffage de l’eau chaude sanitaire : ballons d'eau chaude électriques.
Production d'énergies renouvelables : 200 m² de panneaux photovoltaïques.
Système de ventilation : VMC double flux.
Menuiserie extérieure en bois double vitrage, coefficient Ug< 1,10 et Uw<1,65 W/m²C°.
Eclairage artificiel intérieur et extérieur basse consommation à détecteur de présence et à graduation.
Conception bioclimatique : compacité des enveloppes, casquette et débords de toiture, stores brise-soleil à lames orientables installés en façade Sud.
Lauréat PRIX HABITAT & BOIS LORRAINE 2013 : catégorie Transformation de l'existant - Lauréat PREBAT Lorraine 2010
Publié le : 24/10/2013