Restructuration de l'école primaire - Haroué

Haroué

Meurthe-et-Moselle

428 habitants (source : INSEE 2009)
2 Route de Ville-sur-Madon
2 Route de Ville-sur-Madon - Haroué (428 habitants)

Le projet de restructuration et de rénovation de l'école élémentaire a permis de redessiner l'ensemble de la façade principale et de l'harmoniser avec la maternelle existante, par la mise en place de brises-soleils.

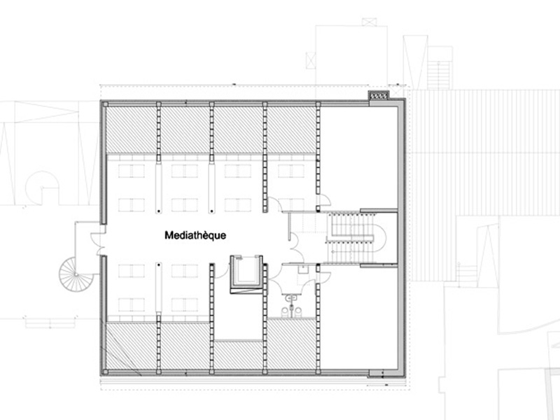
La médiathèque aménagée sous les combles est un véritable cocon propice à la lecture et aux activités, seule une baie vitrée située sur le mur pignon cadre sur le paysage lointain.

Des jeux pour enfants et un potager pédagogique ont été aménagés à l'arrière du bâtiment.

Maîtrise d'ouvrage

SIVOM de Haroué

Maîtrise d'œuvre

WM Architecture - CHOLLET-AIC, bureau d'études

Programme

Création d'une cinquième salle de classe au rez-de-chaussée.

Création d'une médiathèque sous les combles.

Calendrier de l'opération

  • Début de la réflexion : septembre 2010
  • Choix de la Maîtrise d'Oeuvre (MOE): décembre 2010
  • Début des travaux : octobre 2011
  • Réception : janvier 2012

Nature des travaux

  • Réhabilitation

Type d'équipement

  • Equipement scolaire/universitaire
  • Ecole primaire

Surface(s) et coût(s)

Surface : 383 m2 (SU)
Coût des travaux : 998 272 € HT (Valeur 2012)
Bâtiment modulaire installé durant la durée des travaux.
Coût de l'opération : 1 130 752 € HT

Télécharger le plan masse

Publié le : 04/10/2013

Retour à la liste